Quantity Surveyor: AJ Oakes & Partners
Branch Hill
Our proposal assumed refurbishment of the whole complex to create 23 new high quality homes. This would see the 1970s extension fully dedicated to affordable housing, including 7 NW3 CLT flats. The Edwardian building would contain market sale apartments to realise the maximum budget for the project.
Old Hampstead Police Station
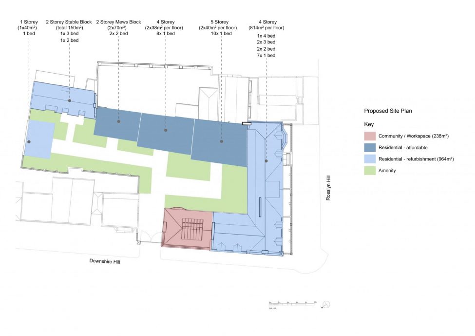
We proposed a mixed-use development comprising housing with the emphasis on key-worker housing, a Community space and a workspace hub. The proposal respects the Listed status of the building and ensures the retention of its key heritage features such as making use of the Magistrates Court for a Community space.
The proposal includes the refurbishment of the main listed building and a coach house in order to create 15 flats for market sale. This enables key-worker housing to be built within a large undeveloped yard that sits at the back of the Listed building. By developing this yard, we proposed to create a set of new buildings with 20 flats for affordable rental.
Wells Court
Together we developed a proposal of community-led housing scheme; a subtle conversion of the internal layouts to provide 19 housing units and add 2 more in a set-back rooftop extension. 70% of all units would be affordable rental flats for local people, held by NW3 CLT in perpetuity.
NW3 CLT submitted the bid to Camden Council but in February 2016 were informed that were not successful.











