Timber Garden Extension, N10
Client: Prof Architectural History and Family
Engineer: Techniker
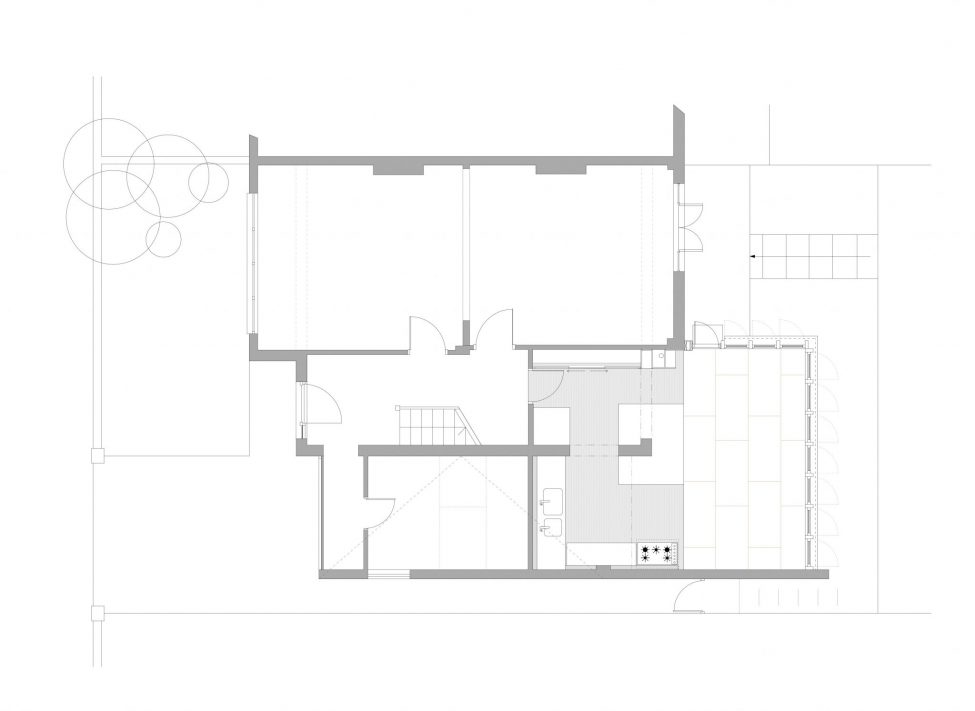
A family room and kitchen in a 1930’s suburban home reside comfortably in this leafy enclave of London. A strong desire by the clients to build something unique, and a family link to both the cedar homes of Massachusetts and the clean timber homes of Scandinavia drew us to build this entirely wooden extension. Main materials used for this modern rear extension are glass and timber. The structure is stressed plywood and the regularity of the bays is read through the glazed curtain wall interrupted only by structural columns. The budget dictated a novel approach and the costs were kept down by leaving interior finishes in varnished birch ply.













